From new video boards to fancier seats to better cell service, a closer look at KU’s proposed $49M Allen Fieldhouse project

By Chad Lawhorn     Mar 20, 2023

article image Nick Krug
A long line of Jayhawk fans stretches down Naismith Drive for Late Night in the Phog, Friday, Oct. 9, 2015 at Allen Fieldhouse.

Another men’s basketball season is over at KU, and you know what they say at the winningest program in college basketball: You don’t rebuild at Kansas — you reload.

Well, this year, they’ll also refurbish.

As we’ve been reporting for the past couple of weeks, plans are in the works for historic Allen Fieldhouse to undergo a major renovation. The project was announced in early March by KU Athletics with several details about what is included. We added a few more details on Friday when documents arrived at the Kansas Board of Regents that estimate the project will have a price tag of $49 million, which is about $30 million more than expected when planning began in 2018.

Now, I’ve got my hands on one more set of documents that provide more details about the project. None are earth-shaking in terms of being different than what has been revealed so far, but the 16-page Architectural Program Statement delivered to the Regents goes into more detail than what’s been available thus far. Given that Allen Fieldhouse is, by far, the most-seen image in all of Lawrence — especially when you factor in the number of times it is shown on national television — we might as well dig into the details.

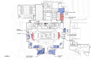
— Seating changes. KU announced one of the most visible changes would be the addition of more seats with chair backs in the arena. However, it wasn’t clear where those would be. The new documents show the chair backs will be added on the west side of the court — the side where the teams’ benches are located. If you recall, there are only a small number of chairbacks right at center court on the west side. That’s compared to the east side, where chair backs basically stretch the length of the court. The plans show that KU intends to have chair backs stretch the length of the court on the west side as well. The document says the new seat backs will match the existing wood seat backs.

One question that is not answered in the documents provided to the architects is whether Allen Fieldhouse’s famed capacity of 16,300 people will decline at all. I’m not sure if you can get as many people in a row with chair backs. I’m sure there is a design standard and some type of mathematic formula that determines how wide a space must be to be counted as a seat. (I’m pretty sure the formula involves the per capita number of doughnut stores in a community. At least I’ve found that impacts my seat width.)

article imageUniversity of Kansas/KS Board of Regents

Design plans to refurbish Level 3 of Allen Fieldhouse are shown.

article imageUniversity of Kansas/KS Board of Regents

A design plan for Level 4 of Allen Fieldhouse is shown.

— Fieldhouse suites? As the document spells out the general project goals, one of them is listed as: “provide suite spaces that are integrated into the existing fabric and character of Allen Fieldhouse.” The document doesn’t define what KU means by suites. Normally, you think of those as enclosed viewing areas where donors are able to host a party while watching the game. That seemingly would be difficult to create in Allen Fieldhouse, and the schematics provided with the document don’t show any such suites. But, I found the wording intriguing, so I’m passing it along. I’ll let you know if I hear more about what is meant.

— New video boards. KU in its initial release revealed the project would include a new scoreboard and jumbo video board to replace the current unit that hangs over center court. The plans indeed show that improvement, but also list two other video board installations. Plans call for new video boards to be installed in both the northwest and southeast corners of the building. The plans show the video boards would be in the very upper reaches of the building. Those would be new additions, as the only video board to watch a replay on currently is the one that hangs over center court.

How much space those video boards may take, and whether that also would cause a decrease in overall seating isn’t detailed in the report.

article imageUniversity of Kansas/KS Board of Regents

Design plans to refurbish Level 2 of Allen Fieldhouse are shown.

— Parking and pub. No, don’t expect anymore parking spaces to show up next to the fieldhouse, but if you are lucky enough to have a permit to park in the garage adjacent to Allen Fieldhouse, you will notice an upgrade. The existing bridges that connect the fieldhouse to the garage will be completely enclosed, according to the plans. A new elevator also will be installed on the north end of the fieldhouse to take those folks coming from the garage up to their seats, if they so choose.

The north end — on level two — also is where KU plans to build a new pub where people can gather before and after games. The pub basically will be just to the left of the Level 2 walkway that connects the parking garage and the fieldhouse.

— Upgraded bones and phones. A big part of the project will be providing new heating and air conditioning systems to “provide suitable comfort conditions year-round.” Fire sprinklers also will be updated throughout the historic building, which dates to 1955. Also on tap is new event lighting and new sound system, plus “improved cellular coverage” for the building.

— Fancy flooring and entrances: The concourse flooring on level two is planned to be redone with terrazo flooring. Look for a new VIP entrance on the south end of level one, according to the plans. Finally, expect new vomitories. (Now that you mention, I did feel some vomitories coming on as that last game wrapped up.) No, no. Vomitories are an architectural term for passageways. In this case, expect the passageways from the concourses to the actual arena to get upgraded.

article imageUniversity of Kansas/KS Board of Regents

Concept design plans to refurbish Level 1 of Allen Fieldhouse are shown.

As we’ve reported, the project is expected to occur in two phases. The first is scheduled to run from April through September of this year. The second phase would run from April 2024 to September 2024.

When completed, the project will be the biggest renovation ever to Allen Fieldhouse, in terms of dollars. Part of that, though, is because of inflation. At $49 million it will be $8 million more than the expansion that occurred in 2009. That one, though, added a lot more space to the complex. That $41 million project expanded the Booth Family Hall of Athletics, added an 11,600 square foot basketball practice facility, remodeled the locker rooms, and created a host of tutoring rooms, offices and donor areas. This latest project also will be more than the 2016 DeBruce Center, which was added to the north of the fieldhouse to serve as a home for the original rules of basketball. That center was a $22 million project.

PREV POST

A glimpse into how Kansas basketball coach Bill Self was recovering and what's next on his calendar

NEXT POST

106326From new video boards to fancier seats to better cell service, a closer look at KU’s proposed $49M Allen Fieldhouse project

Author Photo

Written By Chad Lawhorn